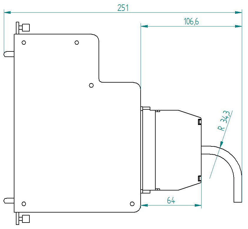
Dimensions
Dimensions of the module (dimensions in mm)
Dimensions with cable (dimensions in mm)