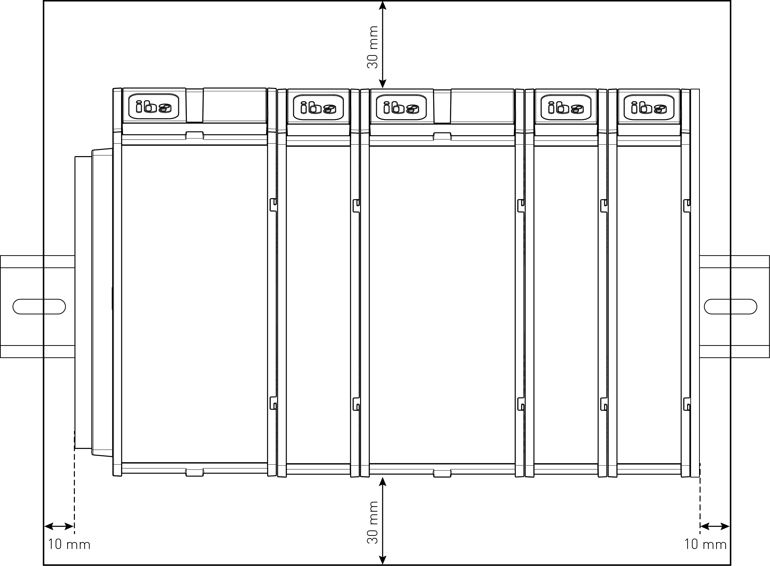
ibaM-DAQ dimensions, dimensions in mm
Note |
|
|---|---|
|
Installation clearances Ensure a minimum clearance of 30 mm above and below the housing and 10 mm to the left of the cooling fins to ensure adequate ventilation of the device. If the device has been extended with further modules, the above-mentioned clearances apply to the entire system.
|
|
