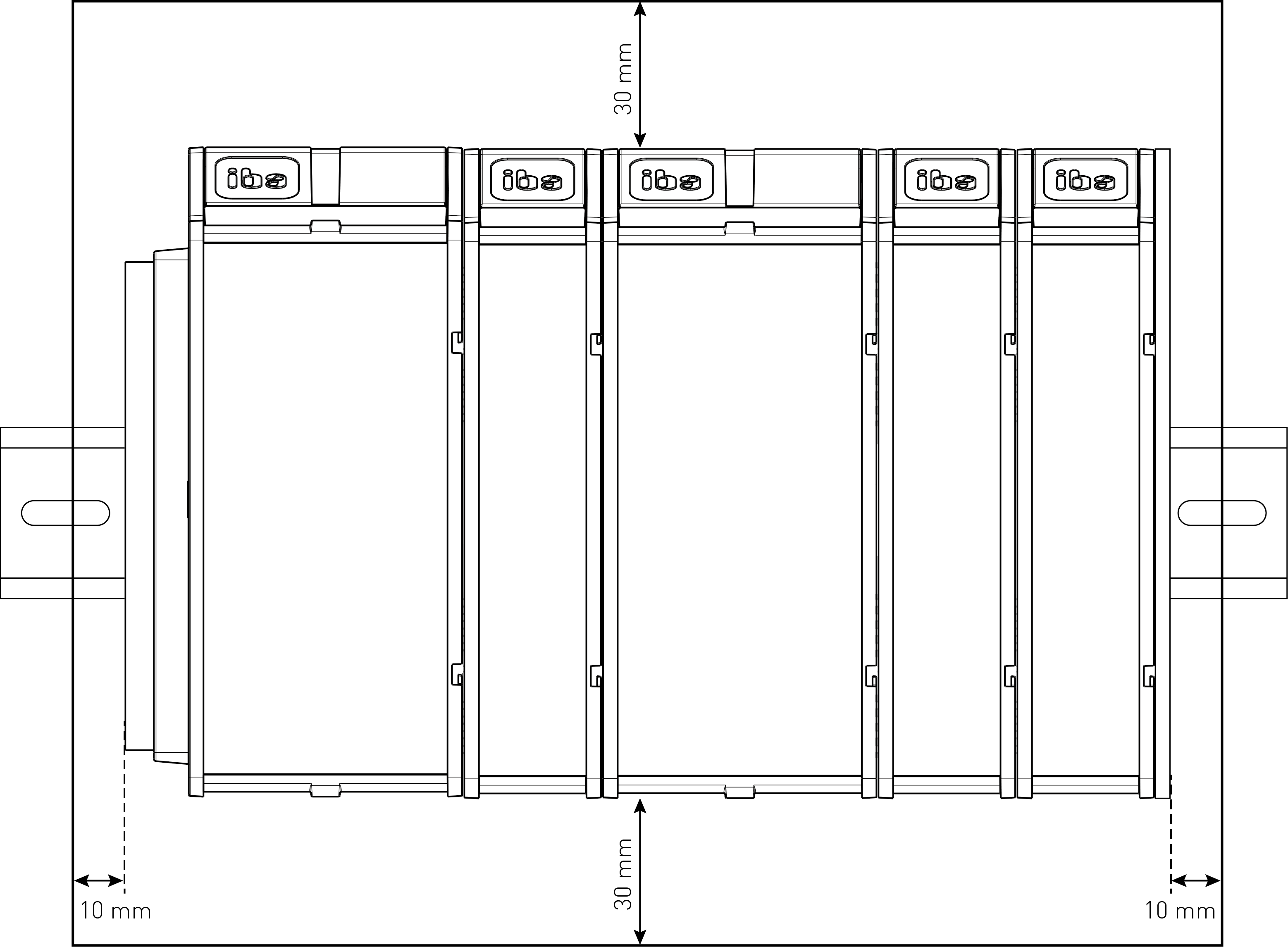
Dimensions ibaM-COM, dimensions in mm
Note |
|
|---|---|
|
Ensure a minimum clearance of 30 mm above and below the housing and 10 mm to the right and left of the cooling fins to ensure sufficient ventilation of the device. If the device has been extended with further modules, the above-mentioned clearances apply to the entire system.
|
|
