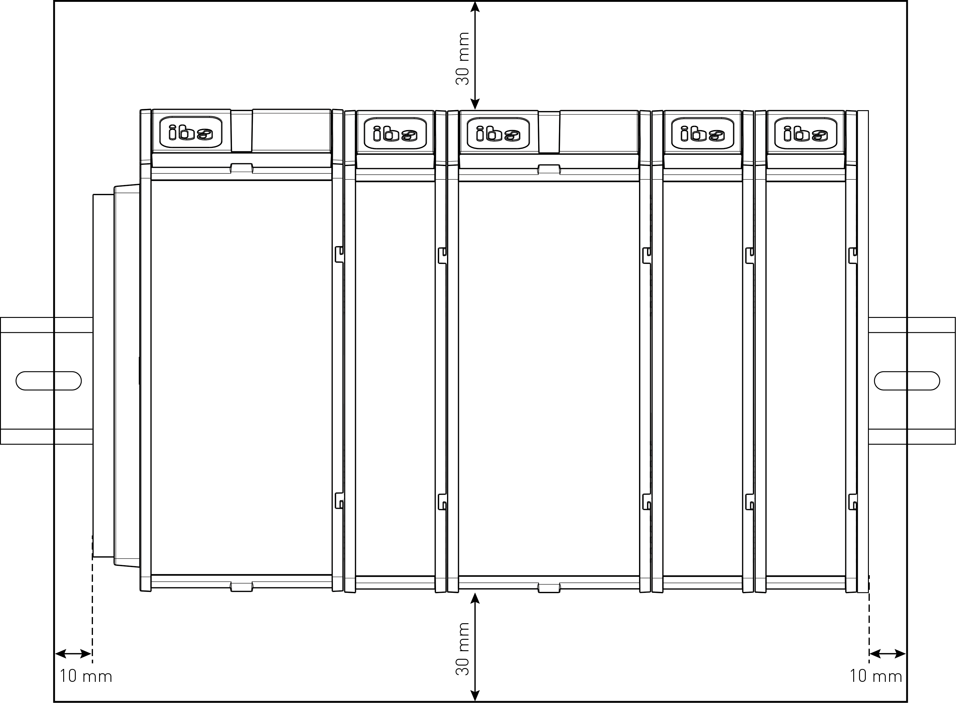
Abmessungen ibaM-COM, Maße in mm
Hinweis |
|
|---|---|
|
Halten Sie einen Mindestabstand des Gehäuses von 30 mm nach oben und unten sowie 10 mm rechts und links neben den Kühlrippen für eine ausreichende Belüftung des Gerätes ein. Wenn das Gerät mit weiteren Modulen erweitert wurde, gelten die oben genannten Abstände für das Gesamtsystem.
|
|
