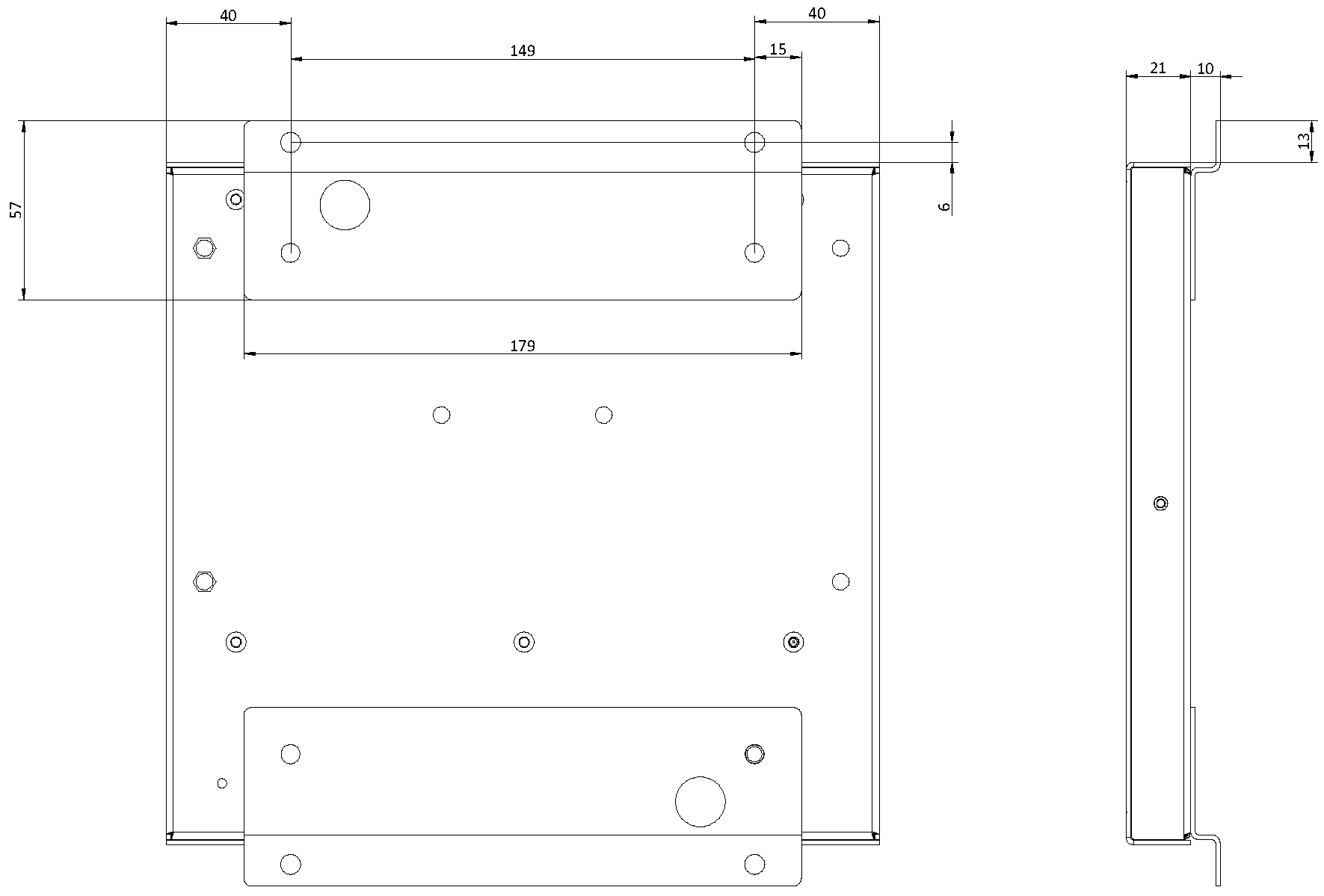
(dimensions in mm)



(dimensions in mm)